391 Washington Street, Buffalo, NY 14203
391 Washington Street, Buffalo, NY 14203
ABL - 521
apartments at the Buffalo Lafayette – 391 Washington Street, Buffalo, NY 14203
• 2 bed
• 2 bath
• Unfurnished
• 837 square feet
• $1,375 per month
• Available early February
• Security deposit equals one month's rent ($1,375)
• Contains two restaurants and bars including Public Espresso to get your coffee fix in and Quarter Deck Athletics!
• Close proximity to the Medical Campus (Children’s Hospital, Buffalo General & Roswell Park) First Niagara Center, Canal Side, Ellicott Street (restaurant row), the 33 and 190 and the subway line (for quick access to downtown, Medical Campus and University of Buffalo’s South Campus)
• Central heat and central air conditioning in unit
• Hardwood floors, granite countertops with stainless steel appliances (gas stove and dishwasher!)
• 24 hour gym on premise, water, trash and recycling are paid by the landlord
• Washers & dryers (coin operated) are on premise
• Monthly parking in Buffalo Civic Auto Ramps (BCAR) Adam’s Ramp located just across the street from the building with monthly pricing of $87 per month for 24-hour parking access
• Cat or dog up to 20 pounds welcome (no pet deposit required)
• Gas & electric (for heat, cooking and A/C), and cable and are paid by the tenant. Gas & electric bills are modest
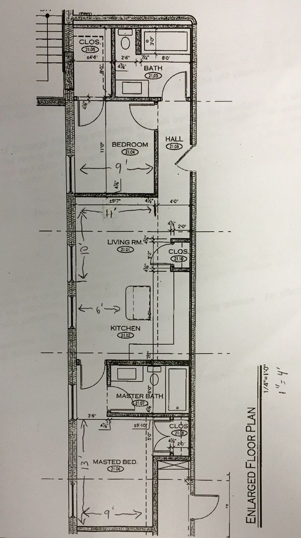
• See pictures of the unit (previously decorated by another tenant) with the unit's floor plan below
• 2 bed
• 2 bath
• Unfurnished
• 837 square feet
• $1,375 per month
• Available early February
• Security deposit equals one month's rent ($1,375)
• Contains two restaurants and bars including Public Espresso to get your coffee fix in and Quarter Deck Athletics!
• Close proximity to the Medical Campus (Children’s Hospital, Buffalo General & Roswell Park) First Niagara Center, Canal Side, Ellicott Street (restaurant row), the 33 and 190 and the subway line (for quick access to downtown, Medical Campus and University of Buffalo’s South Campus)
• Central heat and central air conditioning in unit
• Hardwood floors, granite countertops with stainless steel appliances (gas stove and dishwasher!)
• 24 hour gym on premise, water, trash and recycling are paid by the landlord
• Washers & dryers (coin operated) are on premise
• Monthly parking in Buffalo Civic Auto Ramps (BCAR) Adam’s Ramp located just across the street from the building with monthly pricing of $87 per month for 24-hour parking access
• Cat or dog up to 20 pounds welcome (no pet deposit required)
• Gas & electric (for heat, cooking and A/C), and cable and are paid by the tenant. Gas & electric bills are modest
• See pictures of the unit (previously decorated by another tenant) with the unit's floor plan below
Contact us:















